Umbau Laden zu Wohnung
Bestand
Das Bestandsgebäude ist ein ortsbildprägendes Wohn- und Geschäftshaus mit markanter Turm- und Dachgestaltung. Im Erdgeschoss befand sich ursprünglich eine großzügige Ladenfläche mit Schaufensterfront. Die Gebäudestruktur war intakt und wies einen hohen Erhaltungsgrad auf.
Zielsetzung und Konzept
Ziel des Umbaus war es, die ehemals gewerblich genutzte Fläche in eine moderne, energetisch optimierte Wohneinheit umzuwandeln, dabei jedoch die bestehende Gebäudestruktur maximal zu erhalten. Das neue Raumkonzept wurde in den Bestand „eingeschrieben“, ohne in die tragende Substanz des Gebäudes einzugreifen.
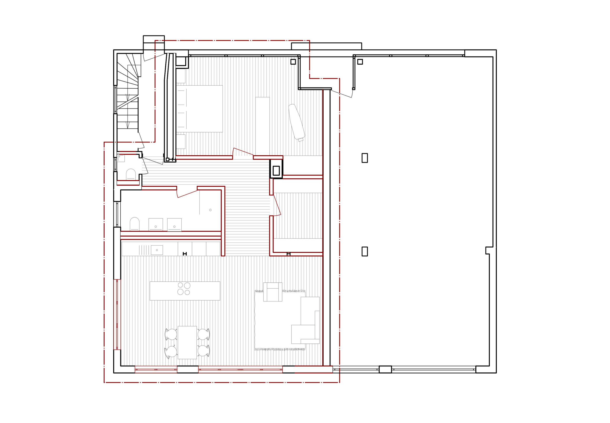
Bauliche Maßnahmen
Die Umgestaltung der ehemaligen Ladenfläche in eine Wohnung erfolgte unter größtmöglicher Rücksichtnahme auf den Bestand. Im Innenraum wurde durch das Einziehen neuer nichttragender Wände und Einbauten eine moderne Raumstruktur geschaffen. Der großzügige offene Wohn-, Ess- und Kochbereich orientiert sich Richtung Süden, hier wurden in die Fassade großzügiger Fensteröffnungen ergänzt. Entlang der ehemaligen Schaufensterfront wird ein privaterer Bereich mit Schlafzimmer, Bad und Nebenräumen ergänzt. Der Zugang erfolgt weiterhin über den bestehenden Hauseingang. Im Zuge des Umbaus wurde auch die Schaufensterfront zur Nordseite angepasst: Ein Teil der ehemals großflächigen Verglasung wurde durch ein kleinere Öffnungsflügel ergänzt, um den Wohncharakter zu stärken und gleichzeitig die bestehende Fassadengestaltung sensibel weiterzuführen.
Zur energetischen Optimierung der neuen Wohnung wurden umfangreiche Maßnahmen umgesetzt. Dazu zählen die Dämmung des Fußbodenaufbaus sowie der Innenwände im Bereich der neuen Einbauten, um den Wärme- und Schallschutz zu verbessern. Fenster und Verglasungen wurden dort, wo es notwendig war, energetisch aufgewertet. Die Wohnung wurde vollständig an die bestehende Haustechnik des Gebäudes angeschlossen, wodurch ein effizienter Betrieb der Heizung, Warmwasserbereitung, Entwässerung und Stromversorgung sichergestellt werden konnte.
Statik und Brandschutz
Da keine tragenden Außenwände verändert wurden, waren nur geringe statische Anpassungen notwendig.
Der neue Grundriss erfüllt die brandschutztechnischen Anforderungen an eine Wohneinheit im Erdgeschoss.
Fazit
Der Umbau ermöglicht eine nachhaltige Nutzung des Bestandsgebäudes, indem die nicht mehr genutzte Ladenfläche sinnvoll in Wohnraum umgewandelt wurde. Das historische Erscheinungsbild des Gebäudes bleibt im Straßenbild erhalten, während die Wohnqualität im Innenraum erheblich gesteigert wurde.
- Bauherr*inPrivat
- BearbeitungszeitLeistungsphasen 1 - 8: 03.2023 - 05.2025
- CategoriesArchitekturInnenarchitektur




